Design 1F10 #924

Starting at $2,874
626 Sq. Ft. | 1 Bed | 1 Bath
Available Now

Features

  • Living Areas

    • Wood Laminate Flooring
  • Kitchen and Bath

    • Tile Backsplash
    • Garbage disposal
    • Cabinet Accent Lighting
    • Dishwasher
    • Microwave
    • Tile Bathroom
  • Home Attributes

    • Custom Millwork
    • Air Conditioning
    • Dryer
    • Washer
  • Premium Features

    • Floor Penthouse
    • Designer Pendant Lighting
    • Balcony-Medium
  • 2D Diagram
  • 2D Diagram Furnished
  • 3D Tour
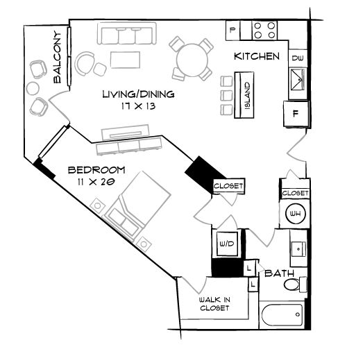
Flats 8300 - Bethesda, MD - Floor Plan Diagram

Design 1F10

This 1-bedroom, 1-bathroom floor plan features an open concept layout with in-unit washer and dryer, walk-in closet, and balcony.

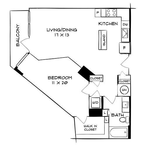
Flats 8300 - Bethesda, MD - Floor Plan Diagram

Design 1F10

This 1-bedroom, 1-bathroom floor plan features an open concept layout with in-unit washer and dryer, walk-in closet, and balcony.

Design 1F10

This 1-bedroom, 1-bathroom floor plan features an open concept layout with in-unit washer and dryer, walk-in closet, and balcony.

*Apartment prices, availability and terms are subject to change without notice. Apartment photos and floor plans are for illustrative purposes only. Actual square footage, layout, and property or apartment features may vary.